Description
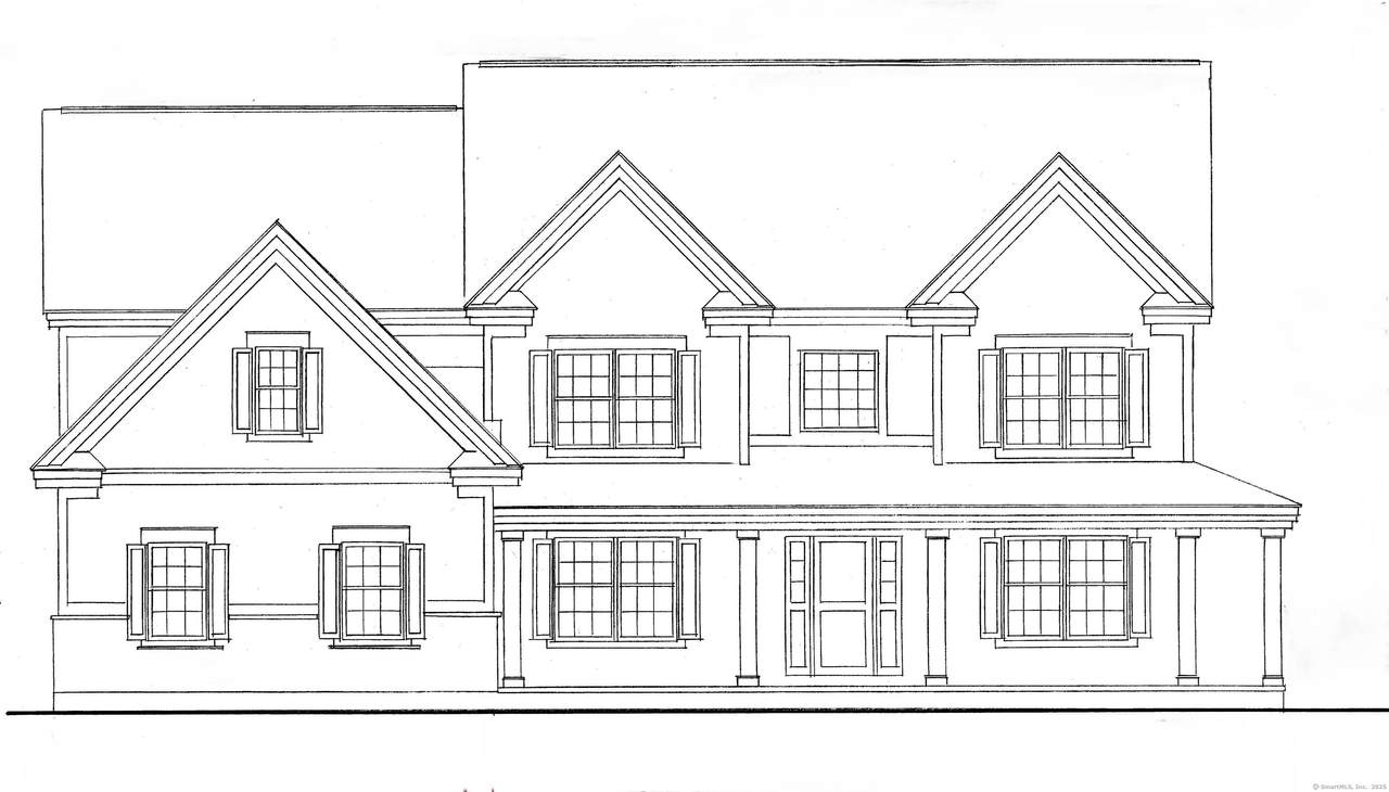
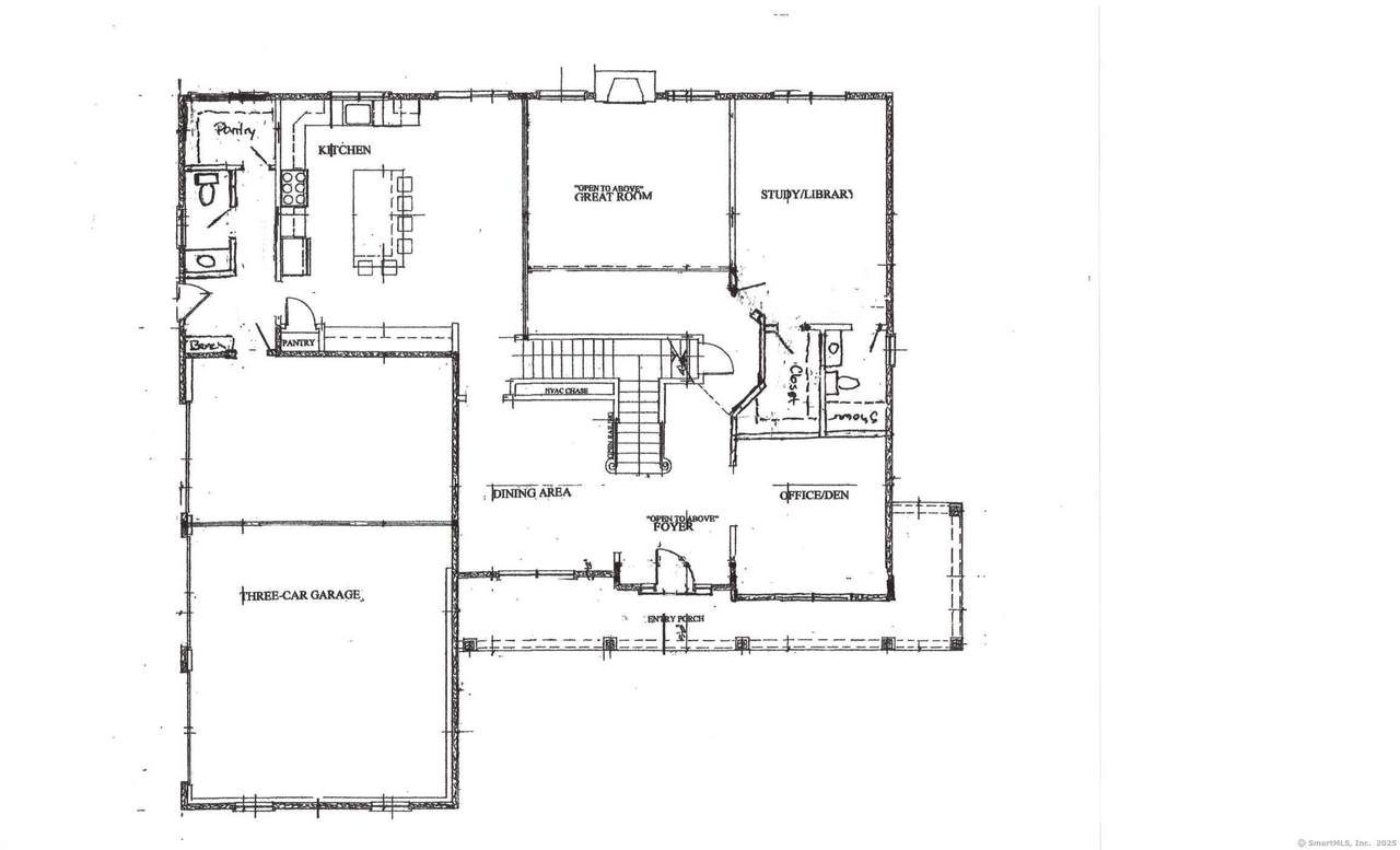
A beautiful new construction home!! Only 2 lots remain in the desirable Orchard View subdivision. Introducing the expanded Essex plan at 4,011 square feet. A very spacious home with 9 ft ceilings on the main level, a generous sized kitchen, and a beautiful cathedral ceiling in the Family Room that perfectly highlights the propane fireplace. A very functional mudroom area right off the 3 car garage, with a 1/2 bath and walk in pantry. The front foyer has a grand feel with the open ceiling and aesthetically pleasing split design stairs. Completing the first floor is a Dining Room, Guest suite and a large Study. Four bedrooms and a Laundry Room are to be found on the second floor. You may never want to leave the Primary bedroom, with its vaulted ceiling, a huge walk in closet and luxurious en-suite bath. One of the 3 remaining 2nd floor bedrooms has its own en-suite bath, convenient for overnight guests.
-
4BEDS
-
1.03ACRES
-
3BATHS
-
21/2 BATHS
Description
A beautiful new construction home!! Only 2 lots remain in the desirable Orchard View subdivision. Introducing the expanded Essex plan at 4,011 square feet. A very spacious home with 9 ft ceilings on the main level, a generous sized kitchen, and a beautiful cathedral ceiling in the Family Room that perfectly highlights the propane fireplace. A very functional mudroom area right off the 3 car garage, with a 1/2 bath and walk in pantry. The front foyer has a grand feel with the open ceiling and aesthetically pleasing split design stairs. Completing the first floor is a Dining Room, Guest suite and a large Study. Four bedrooms and a Laundry Room are to be found on the second floor. You may never want to leave the Primary bedroom, with its vaulted ceiling, a huge walk in closet and luxurious en-suite bath. One of the 3 remaining 2nd floor bedrooms has its own en-suite bath, convenient for overnight guests.
The data relating to real estate for sale on this website appears in part through the SMARTMLS Internet Data Exchange program, a voluntary cooperative exchange of property listing data between licensed real estate brokerage firms, and is provided by SMARTMLS through a licensing agreement. Listing information is from various brokers who participate in the SMARTMLS IDX program and not all listings may be visible on the site. The property information being provided on or through the website is for the personal, non-commercial use of consumers and such information may not be used for any purpose other than to identify prospective properties consumers may be interested in purchasing. Some properties which appear for sale on the website may no longer be available because they are for instance, under contract, sold or are no longer being offered for sale. Property information displayed is deemed reliable but is not guaranteed. Copyright 2026 SmartMLS, Inc. Data last updated: 2026-01-22T21:09:53.977.
